Logo merton's Flächen

Die Flächen in der Merton’s Passage bieten flexible Nutzungsmöglichkeiten für unterschiedlichste Anforderungen. Ob Büro, Einzelhandel, Praxen oder Gastronomie – hier entfalten sich Ideen und unternehmerisches Potenzial

Mehr Erfahren

Flächen Finder

Die Flächenangaben sind nicht verbindlich: Die Flächenangabe in der Tabelle inkludiert den Allgemeinflächenanteil.

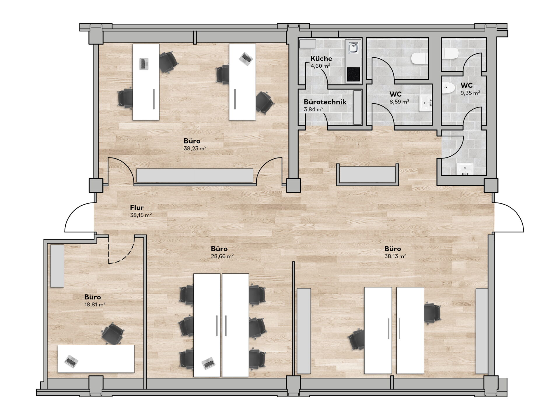
2st Floor Plan 1st Floor Plan EG Floor Plan 4st Floor Plan 3st Floor Plan 2st Floor Plan 1st Floor Plan EG Floor Plan
Gebäudeteil linksGebäudeteil rechts

Klicken Sie oben auf die gewünschte Etage

Gebäudeplan 2. Etage rechts Gebäudeplan 1. Etage rechts Gebäudeplan EG Etage rechts Gebäudeplan 4. Etage links Gebäudeplan 3. Etage links Gebäudeplan 2. Etage links Gebäudeplan 1. Etage links Gebäudeplan EG Etage links
Gebäudeteil Etage Nutzung Fläche Verfügbarkeit
Rechts - Laden 05 Erdgeschoss Einzelhandel 99 m2 ab sofort Details

Rechts - Laden 05

EtageErdgeschoss
NutzungEinzelhandel
Fläche99 m2
Verfügbarkeitab sofort
Downloads
Gebäudeteil Etage Nutzung Fläche Verfügbarkeit
1. Obergeschoss Auf der ausgewählten Etage ist aktuell keine Fläche frei.

Etage1. Obergeschoss
Nutzung
Fläche
VerfügbarkeitAuf der ausgewählten Etage ist aktuell keine Fläche frei.
Downloads
Gebäudeteil Etage Nutzung Fläche Verfügbarkeit
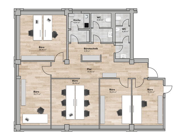
Rechts 02 2. Obergeschoss Büro 215,26 m2 ab sofort Details

Rechts 02

Etage2. Obergeschoss
NutzungBüro
Fläche215,26 m2
Verfügbarkeitab sofort
Downloads
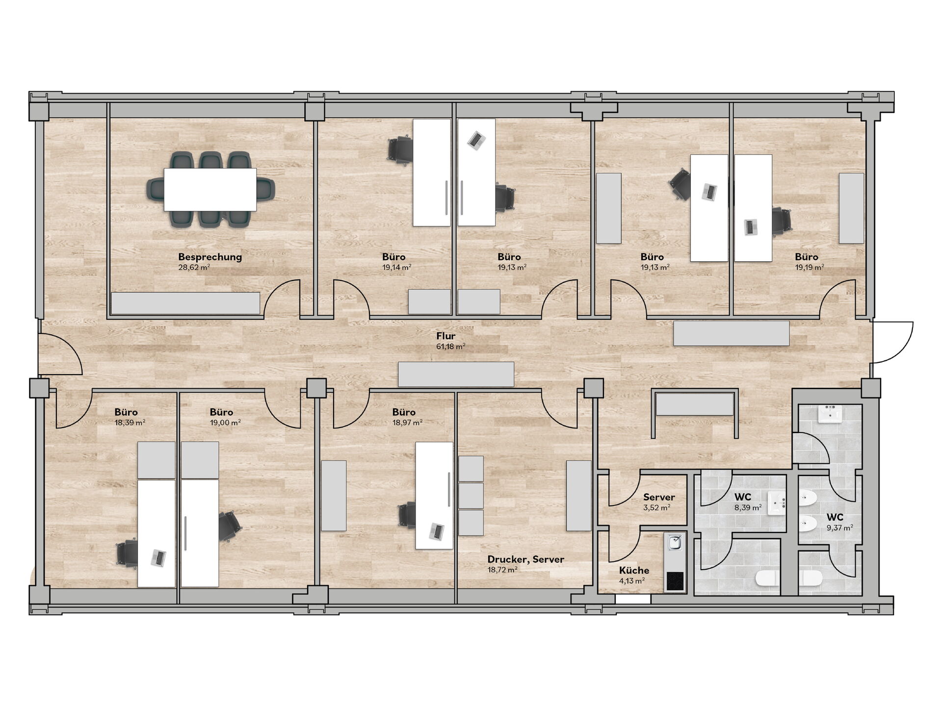
Rechts 03 2. Obergeschoss Büro 296,59 m2 ab sofort Details

Rechts 03

Etage2. Obergeschoss
NutzungBüro
Fläche296,59 m2
Verfügbarkeitab sofort
Downloads
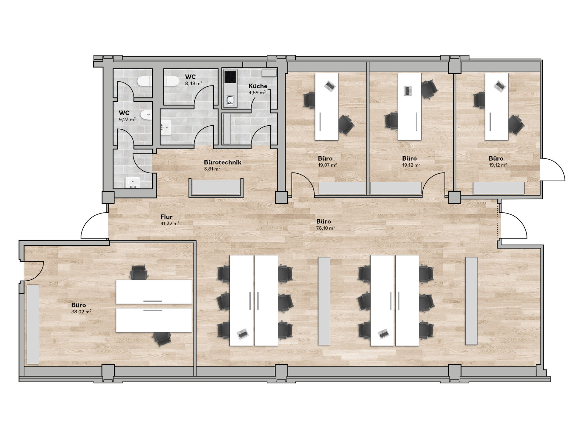
Rechts 04 2. Obergeschoss Büro 122,90 m2 ab sofort Details

Rechts 04

Etage2. Obergeschoss
NutzungBüro
Fläche122,90 m2
Verfügbarkeitab sofort
Downloads
Gebäudeteil Etage Nutzung Fläche Verfügbarkeit
EG Auf der ausgewählten Etage ist aktuell keine Fläche frei.

EtageEG
Nutzung
Fläche
VerfügbarkeitAuf der ausgewählten Etage ist aktuell keine Fläche frei.
Downloads
Gebäudeteil Etage Nutzung Fläche Verfügbarkeit
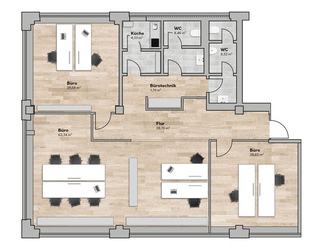
Links 01 1. Obergeschoss Büro 189,58 m2 Ab sofort Details

Links 01

Etage1. Obergeschoss
NutzungBüro
Fläche189,58 m2
VerfügbarkeitAb sofort
Downloads
Links 03 1. Obergeschoss Büro 206,19 m2 Ab sofort Details

Links 03

Etage1. Obergeschoss
NutzungBüro
Fläche206,19 m2
VerfügbarkeitAb sofort
Downloads
Gebäudeteil Etage Nutzung Fläche Verfügbarkeit
2. Obergeschoss Auf der ausgewählten Etage ist aktuell keine Fläche frei.

Etage2. Obergeschoss
Nutzung
Fläche
VerfügbarkeitAuf der ausgewählten Etage ist aktuell keine Fläche frei.
Downloads
Gebäudeteil Etage Nutzung Fläche Verfügbarkeit
Links 01 3. Obergeschoss Büro 189,60 m2 ab 01.01.2026 Details

Links 01

Etage3. Obergeschoss
NutzungBüro
Fläche189,60 m2
Verfügbarkeitab 01.01.2026
Downloads
Links 02 3. Obergeschoss Büro 286,41 m2 ab 01.01.2026 Details

Links 02

Etage3. Obergeschoss
NutzungBüro
Fläche286,41 m2
Verfügbarkeitab 01.01.2026
Downloads
Links 03 3. Obergeschoss Büro 207,95 m2 ab sofort Details

Links 03

Etage3. Obergeschoss
NutzungBüro
Fläche207,95 m2
Verfügbarkeitab sofort
Downloads
Gebäudeteil Etage Nutzung Fläche Verfügbarkeit
Links 03 4. Obergeschoss Büro 206,57 m2 ab sofort Details

Links 03

Etage4. Obergeschoss
NutzungBüro
Fläche206,57 m2
Verfügbarkeitab sofort
Downloads
Links 04 4. Obergeschoss Büro 198,84 m2 ab sofort Details

Links 04

Etage4. Obergeschoss
NutzungBüro
Fläche198,84 m2
Verfügbarkeitab sofort
Downloads

Moderne Bürowelten, Gewerbe und Retail

Unsere Flächen bieten mehr als nur Raum – sie schaffen moderne Arbeitsumgebungen, flexible Gewerbeeinheiten und attraktive Retailflächen. Mit durchdachten Konzepten entstehen Orte, die Produktivität und Kreativität fördern.

Größtmögliche Flexibilität für die Arbeitswelt von Morgen

Dank des engmaschigen Gebäuderasters sind unterschiedlichste Raumkonzepte realisierbar: von klassischen Einzelbüros und funktionalen Teambüros über moderne Gruppen und Open-Space-Lösungen bis hin zu innovativen Arbeitswelten wie Activity-Based Working oder Co-Working-Spaces. So entstehen maßgeschneiderte Arbeitsbereiche, die effizientes Arbeiten, Zusammenarbeit und Kreativität optimal fördern und sich jederzeit an die Bedürfnisse Ihres Unternehmens anpassen lassen.

Einblicke in die Büroflächen und das Gebäudeensemble der Merton’s Passage

Gewerbeflächen für jeden Anspruch

Unsere Gewerbeflächen passen sich Ihren Anforderungen an – flexibel, modern und vielseitig nutzbar. Hier finden Unternehmen jeder Größe den idealen Raum für Wachstum und Erfolg. Komfortable Parkmöglichkeiten im Untergeschoss, praktische Ladewege und separate Zugänge gewährleisten eine angenehme Erreichbarkeit für Sie und Ihre Kunden.

Auswahl an gewerblichen Bestandsnutzungen innerhalb der Passage